A Deep Dive into iBwave Design Prediction Accuracy Report
Share
The design prediction accuracy report is one of many reports featured in iBwave Design, a leading RF planning and design tool for indoor wireless systems. This report compares RF coverage prediction versus measured data at a venue. In this blog, we’ll explain what the numbers in the report mean, how they should be interpreted, and whether the venue and parts of the network were modeled correctly.
Before running the report, it’s necessary to filter out the fading portion of the surveyed signal. This is done by selecting the imported survey data, right-clicking and selecting the “fast fading averaging” tab, and selecting the number of wavelengths over which the raw data should be averaged: 5, 10, or 20 wavelengths. The number to select depends on the frequency of the survey; at higher frequencies, we use a greater number of wavelengths.
The Predicted Signal
The predicted signal is a median signal. This means that the measured signal has a 50% chance of being greater than the predicted signal and a 50% chance of being less than the measured signal.
The difference between these two signals is called “prediction error”, and our prediction report shows a statistical analysis of the prediction error.
There are three key performance indicators in the report:
- Mean prediction error: At each measurement location, the difference between the measured and predicted signal is taken. The final result is the average of those numbers. Mean prediction error can be a positive or a negative number.
- Absolute mean prediction error: At each measurement point, the absolute value of the difference between the prediction and the measurement is taken. The final result is the average of those numbers. The absolute mean error is a positive number, always greater than the mean error.
- Standard deviation of prediction error.
Good Prediction Accuracy Report Data
What does “good” prediction accuracy report data look like? In a white paper published in 2023, we claim that for over 90% of venues surveyed in the report across all frequencies, absolute mean error and standard deviation was less than 6 dB.
A typical “good” prediction error statistic looks as follows:


The mean error is significantly less than the absolute mean error. This is expected, as some mean error values are positive and some are negative, and mean error values cancel out to some degree.
Bad Prediction Accuracy Report Data
Let’s now take a look at a “bad” prediction report.
We distinguish three use cases:
a) Mean error and absolute mean error are equal or almost equal:

This means that the prediction consistently overestimates or underestimates the measured values. The reason for this anomaly is the discrepancy between EIRP modeled in iBwave Design and EIRP in the field. Most of the time, the issue is the power amplifier’s transmit power, and sometimes the issue is the transmit antenna gain.
It’s a good practice to measure power at a distance of 1 meter broadside from the transmit antenna and compare it to free-space path loss calculations.
It’s also good practice to check if the correct antenna was imported from the iBwave database. Another option is to ask the antenna OEM to send the latest measured antenna radiation pattern and compare it to the modeled antenna radiation pattern.
b) Standard deviation is large

This anomaly is caused by an incorrectly modeled floor plan.
A wall may be missing, or incorrect material may have been assigned to it. There may also be extra walls that have not been modeled.
A good practice is to take many pictures during the survey, compare the floor plan given to the surveyor with the floor plan that exists on site, measure wall penetration loss, and compare with modeled wall loss values used for prediction.
c) Both standard deviation and absolute mean error are large

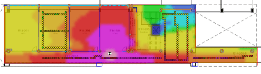
This is similar to the previous case, but this time it’s the wrong antenna location. It’s always good practice to check the survey signal maximum relative to antenna location. If the transmitting antenna is omnidirectional, the minimum signal should be underneath, or very close to antenna. If it’s further away, then the antenna location is wrong and needs to be adjusted. This is the initial antenna location that produced the statistics above:

When the antenna is moved to the location where the survey signal reaches its maximum value, the coverage map looks like this:

The error statistics looks much better now that the antenna is in the correct position:

Read more about iBwave Design Prediction Accuracy in my white paper.
Check out our blog for more tips and topics about wireless networks and their planning!
- A Deep Dive into iBwave Design Prediction Accuracy Report - November 18, 2024
- At a Glance: What Is New in Wi-Fi 7? - July 4, 2024
- Accurate Prediction Simplifies Private, In-Building 5G Network Deployments - March 1, 2023

